Description
***SOUS OFFRE***
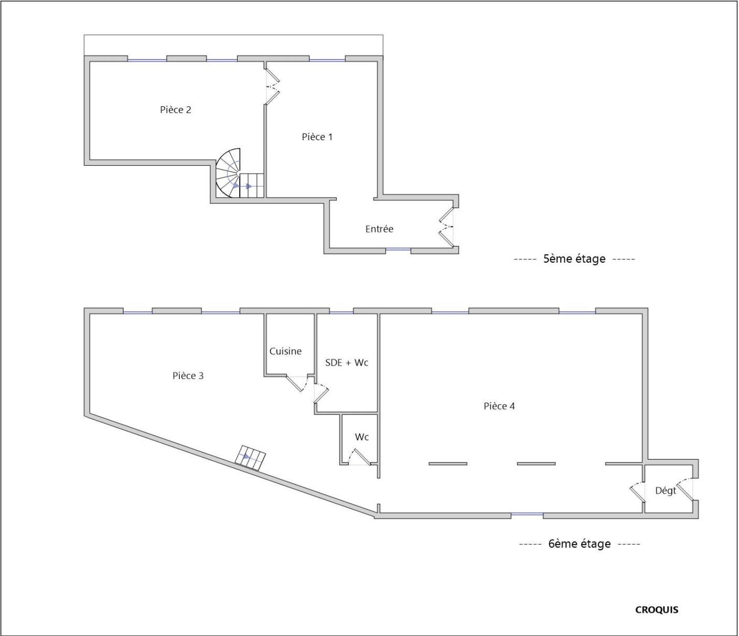
Au cœur du 9eme arrondissement de Paris, dans une rue prisée et animée — rue Lafayette — découvrez ce duplex rare de 103 m² (94,77m2 Loi Carrez), réunion de 2 lots, situé au 5eme et 6eme étage (dernier étage) d’un bel immeuble de standing avec ascenseur.
Ce bien se compose au 5eme étage (niveau d’entrée du duplex)
Une pièce de vie lumineuse dotée de moulures au plafond, une seconde pièce pouvant être utilisée comme bureau ou chambre, une salle d’eau
6eme étage; Un plateau 64 m² Carrez au sol à aménager : chambre(s supplémentaire(s), espace bureau ou suite parentale.
Travaux à prévoir
Atouts & prestations du bien:
Balcon offrant une vue dégagée sur le Sacré-Cœur, panorama rare & charmant
Immeuble de standing, bien entretenu.Charme de l’ancien : moulures, beaux volumes.
-
Proximité immédiate tous commerces, cafés, bars, services, restaurants.
Transport très accessible : station de métro Le Peletier (ligne 7) à deux pas.
Ce duplex offre un potentiel énorme : réaménagement des espaces selon vos besoins, création d’une suite au dernier niveau ou d’un espace multi-activité. Idéal pour résidence principale ou investissement de caractère.
Disponible de suite . Pour plus de renseignements, contactez Jonathan au 06.66.97.47.28
“Les informations sur les risques auxquels ce bien est exposé sont disponibles sur le site Géorisques : www.georisques.gouv.fr”
Où se situe le logement
Paris, Île-de-France (75009), France
Caractéristiques
Copropriété
La copropriété est composée de 26 lots, pour un montant de charges annuelles de 1400 €.Aucune procédure en cours..
Chauffage et diagnostics
Diagnostic de performance énergétique (DPE)
Indice d'émission de gaz à effet de serre (GES)
Prix du bien
Barème des honoraires de l’agence1 025 000 €
Honoraires à la charge du vendeur.
Géorisques
Les informations sur les risques auxquels ce bien est exposé sont disponibles sur le site Géorisques : https://www.georisques.gouv.fr





